143㎡现代轻奢,爱马仕橙色+金属线条,华丽高级
案例介绍
Case Introduction
项目名称:金鹰江韵
项目面积:143㎡
项目造价:半包16万
设计单位:葉氏设计机构
施工单位:叶氏环保整装
少即是多,这种极简的艺术是现代风格的精髓所在,运用流畅的线条来灵活区分各功能空间,表达出精致却不张扬,简单却不随意的生活理念,既满足了简约又得到了品质。本案设计攫取2019主流流行色彩,结合金属线条与光感呼应,这迸射出的激情成就了主人独特的自我气质。
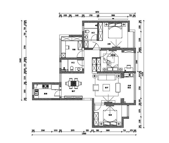
平面设计图▲
客厅▼
全景向阳大窗充分满足了客厅空间的曝光,爱马仕橙色如点睛之笔让空间的动感立体清晰起来。在这个空间,金属线条元素随处可见,无论是背景墙上的分割线,抑或是线条流畅的工艺品造型、或者是家具的各种镶边,这种视觉上层次感,高级轻奢感轻松呈现。
电视背景墙同样简洁大气,内嵌的设计增加了顶部和旁边的收纳空间,原木色的电视柜把其最自然的肌理表现的恰到好处,形成了耐看却精致的组合。
餐厅▼

结合业主的喜爱 及空间合理化的利用,以米白色为主色调,并在墙壁内部凿空增加了酒柜的设计。简约大气的餐桌和餐椅优雅又精致,墙上的艺术品简单中透露出时尚,橙色的色调与金属线条与客厅的色彩相呼应,让区域间的模块各自清晰却并没有被分割。
主卧▼

主卧床头以浅色背景+金属线条装饰,搭配米白色的皮艺床,对称的床头柜+床头灯布置,带来的是一个现代优雅而舒适的睡眠空间。茶褐色+金属镶边组成的衣柜充满了轻奢格调,满足了主人日常的更衣需求。
次卧▼

优雅简洁的空间以浅色调为主,金属元素的运用却如同整个空间的点睛之笔。背景墙上以金属制成的现代工艺品,造型别致却又精致,对称于两侧的壁灯散发出暖黄色的光芒,折射出金属的质感,能在此空间里休息,定能一夜好梦。
儿童房▼

相较于其他空间,儿童房在用色上更为跳脱。大片蓝色的背景墙上闪耀着星辰,如同孩子梦想远航的太空世界。
软装配饰上,床具、书桌都采用了白色为主色调,一张嫩黄色的椅子为空间注入活力。
结 语
迷人最是轻奢。
犹如聆听了世间繁华,不为夸耀,却舞成一段旖旎时光的风景。看似简洁素净的外表之下却常常折射出一种隐藏的贵族气质,从质量、触感、细节中去寻找真正的奢华生活。
-
-
143㎡现代轻奢,爱马仕橙色+金属线
9042 次浏览本案设计攫取2019主流流行色彩,结合金属线条与光感呼应,这迸射出的激情成就了主人独特的自我气质。
-
精致舒适现代风格 金鹰江韵 143㎡
6155 次浏览干净的吊顶,利落的线条勾勒,背景墙点缀的太阳花造型,浅灰绿色沙发配合几何造型搭配的地毯和小品,整体设
-
-
-
时代悦府143㎡现代简美之家,配色大
8279 次浏览本案是一套建筑面积为143㎡的居室,风格定为现代简美风,以米灰色为主调,空间内的装饰物在灰蓝、白色和
-
低调中诠释质感,这套140㎡的江南理
7958 次浏览简约风格就是简单而有品位,这种品位体现在设计上的细节的把握,每一个细小的局部和装饰,都要深思熟虑,在
-
留白的艺术,华润国际140㎡极简风家
8182 次浏览格调高雅,造型简约,不靠浓墨重彩大肆渲染,也没有多余而浮夸的装饰夺人眼球。以空间留白,给生活留白,给
-

Copyright©2019 上海叶氏装潢有限公司 All Rights Reserved
备案号:沪ICP备15017007号-1
