-
-
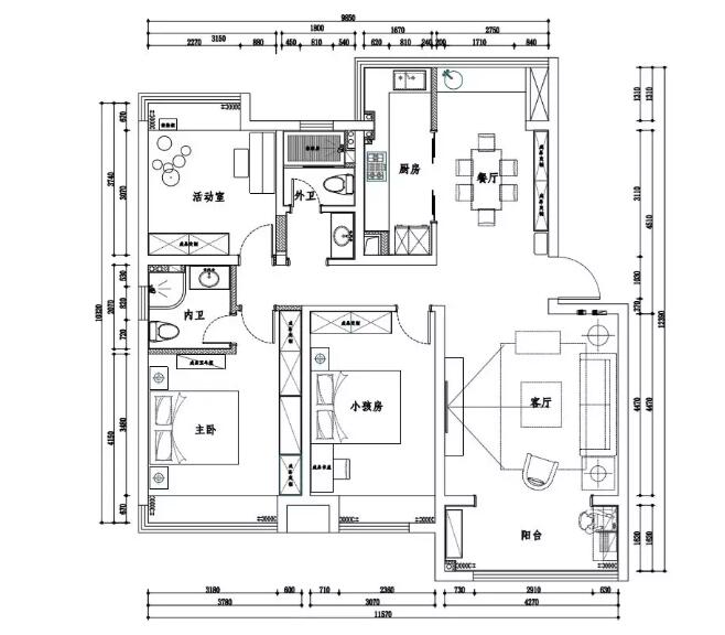
时代悦府143㎡现代简美之家,配色大
8279 次浏览本案是一套建筑面积为143㎡的居室,风格定为现代简美风,以米灰色为主调,空间内的装饰物在灰蓝、白色和
-
-
-
时代悦府143㎡现代简美之家,配色大
8279 次浏览本案是一套建筑面积为143㎡的居室,风格定为现代简美风,以米灰色为主调,空间内的装饰物在灰蓝、白色和
-
低调中诠释质感,这套140㎡的江南理
7957 次浏览简约风格就是简单而有品位,这种品位体现在设计上的细节的把握,每一个细小的局部和装饰,都要深思熟虑,在
-
留白的艺术,华润国际140㎡极简风家
8181 次浏览格调高雅,造型简约,不靠浓墨重彩大肆渲染,也没有多余而浮夸的装饰夺人眼球。以空间留白,给生活留白,给
-

关于我们
尊属专线:400-132-1314




