-
-
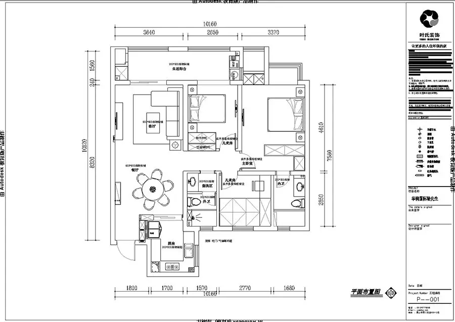
留白的艺术,华润国际140㎡极简风家
8182 次浏览格调高雅,造型简约,不靠浓墨重彩大肆渲染,也没有多余而浮夸的装饰夺人眼球。以空间留白,给生活留白,给
-
现代风设计,高贵与气质的上佳之作
6770 次浏览现代时尚的家具是营造本案整体氛围的亮点,与众不同又极具现代感,使得整个空间所蕴涵的内在气质内敛、平实
-
至境东方,中式优雅180㎡
5552 次浏览本案作品在延续传统中式风格的同时,添加了现代时尚元素,将现代风格与中式风格完美的融合。
-
-
-
时代悦府143㎡现代简美之家,配色大
8279 次浏览本案是一套建筑面积为143㎡的居室,风格定为现代简美风,以米灰色为主调,空间内的装饰物在灰蓝、白色和
-
低调中诠释质感,这套140㎡的江南理
7958 次浏览简约风格就是简单而有品位,这种品位体现在设计上的细节的把握,每一个细小的局部和装饰,都要深思熟虑,在
-
留白的艺术,华润国际140㎡极简风家
8182 次浏览格调高雅,造型简约,不靠浓墨重彩大肆渲染,也没有多余而浮夸的装饰夺人眼球。以空间留白,给生活留白,给
-




